+91 124-4277519
info@Kdc-infra.com
Home
About Us
Services
ROAD ASSET MANAGEMENT
NETWORK SURVEY VEHICLE (3D-LCMS-2)
MOBILE BRIDGE INSPECTION UNIT
FALLING WEIGHT DEFLECTOMETER
BRIDGE HEALTH MONITORING SYSTEM (STS4-4 nodes)
AUTOMATIC COUNTER CLASSIFIER
RETRO REFLECTOMETERS
GROUND PENETRATING RADAR
NON-NUCLEAR GUAG
HIGHWAYS & EXPRESSWAY
BRIDGES
RAILWAYS & METROS
WATER & ENVIRONMENT SECTOR
STRUCTURES & BUILDINGS
Projects
Transportation Sector
Water Environment Sector
Buildings and Structures Sector
Career
Contact
Project Details
Home
Project Details
Major Bridge
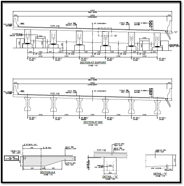
TOTAL SPAN/ LENGTH:
Main:
8x22.5m = 180m
DECK WIDTH
2x16.5m
PSC Girder (Post Tensioned - Precast)
6 Girder system with Direct Support
Wall type Abutment & Pier
Pile Foundation (10 / 12 Pile group)
Bridge over Siswan River
Client:
GMADA
Location:
Chandigarh
Status:
Ongoing, Near Completion